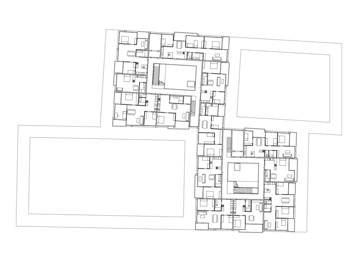
2. Preis - Realisierungswettbewerb Paul-Gerhardt-Allee Baufeld WA1 in München - mit Mark Ammann - 2.Obergeschoss
Anne Hangebruch Architektin +