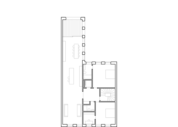
Anne Hangebruch Architektin +
Preisträger Wettbewerb Gründungsviertel - Neues Wohnen auf historischen Parzellen im UNESCO-Welterbe Lübecker Altstadt - Haustyp 1 Beispielgrundriss 1.OG